Sitemizde 3400 çeşit ürün ve bu ürünlere ait 869 adet teknik çizim bulunmaktadır.
KATEGORİLER
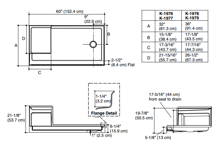
Tresham Oturmali Duş Teknesi
Tresham Oturmali Duş Teknesi
Kohler Türkiye, Tek Yetkili Distribütörü

- Duş teknesi sol oturma alanlı
- 152.4 x 81.3 cm 
- Akrilik - Güçlendirilmiş Fiberglass
- Kaymaz taban
- 13 cm yükseklkte ön panel
- Beyaz

Türkiye' nin Her Yerinden | 444 34 13